Land in Lampeter
Land at Maes-Y-Coed, Lampeter SA48 8BS
- Lot No: 63
- Property Type: Land
- Contract Type: Split fee
Guide Price* £250,000+ plus fees
Property Description
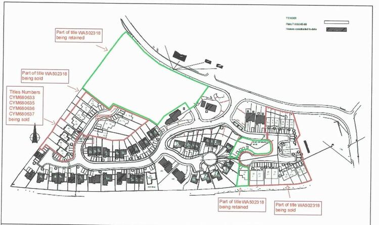
Three plots of land being sold as one development. Lampeter is a market town in the Teifi Valley. It has an interesting history as a university town, provides services for a wide area including independent shops, cafes, leisure centre, farmers market and more. There is a great network of walks to enjoy and all within easy driving distance of the west Wales coast of Cardigan Bay and its many pretty, sandy beaches. The three plots of land comprise of the below:-
Plot A - 1.94 acres
Plot A is a potential residential development land for nine detached and eight semi-detached houses (part of Title Plan WA502318). Please see legal pack for more information.
Plot B - 0.08 acres
Plot B has planning permission for one detached dwelling, identified as plot 23 on plan. Please see legal pack for more information.
Plot C - 0.20 acres
Plot C is and to be retained as open space for potential childrens play area, north of Plot 23. Please see legal pack for more information.
Note
Please be advised that the auctioneers have not personally inspected the property. Prospective buyers are advised to make a viewing enquiry and any other necessary independent enquiries before placing their bid, as this will be binding.
Draft Sales Details
These sales details are awaiting vendor approval.
Tenure
Freehold
Auction Details
Date 27th February 2025
Venue National Property Auction
Our national property auction will be broadcast online with live auctioneers. To bid by proxy, online, or by phone, please submit your registration form no later than 5pm the day before the auction.
Lot Information
Contact Us
If you have any questions, call our team on 0800 046 5454